3D scans turn physical spaces into accessible, accurate, and engaging digital assets. They save time and money, reduce friction in decision making, minimize errors, and provide a competitive edge in marketing, operations, and sales.
FINISHED SPACES
Create a virtual walkthrough for a finished space. Perfect for Real Estate listings or businesses looking to highlight their amenities.
NEW CONSTRUCTION
Capture the inner workings of your construction project. Our 3d scans serve as a living “As-Built” highlighting everything from framing and HVAC, to plumbing and electrical.
ADD-ON SERVICES
Once your space has been captured through our 3D scanning process, we can generate a full suite of industry standard deliverables. These include schematic floor plans, as-built renderings, BIM files, and other ready to use assets tailored for design, planning, and construction workflows.
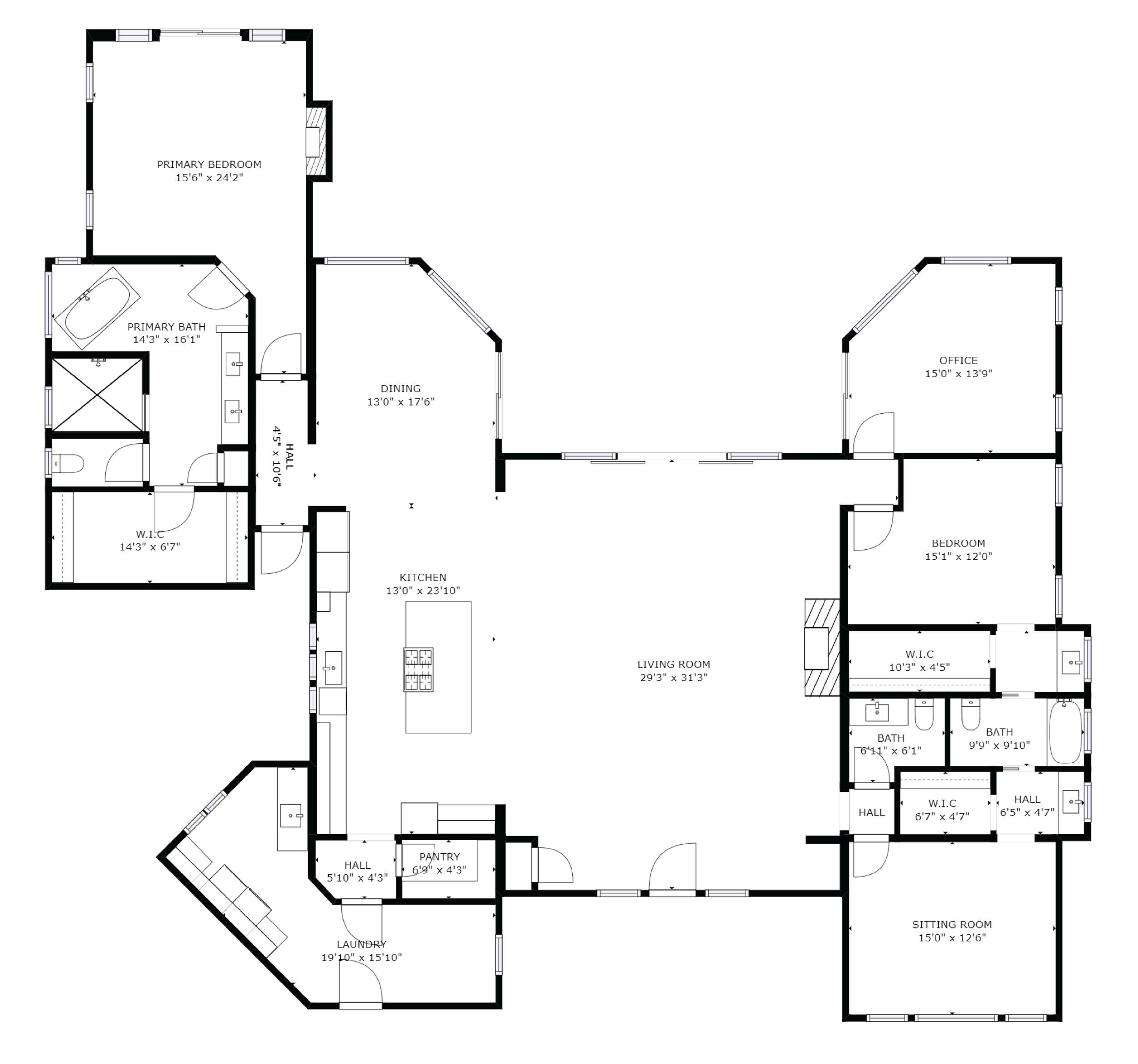
SCHEMATIC FLOOR PLANS
Marketing ready floor plans for your virtual spaces. Leave your measuring tape at home while we create floor plans that leverage the spatial data captured in your spaces to produce a 2D schematic that showcases the property.
AS-BUILT RENDERINGS
Eliminate the need to manually sketch properties by creating an As-Built rendering from your virtual walkthrough. Accelerate the estimation process and shortening claim cycles while allowing you to work 100% remotely.
BUILDING INFORMATION MODELING (BIM)
Transform your virtual walkthrough into a 3D Revit model and 2D CAD file that can be utilized throughout the building lifecycle, including design, construction and facilities management.
CONTACT US FOR A FREE CONSULTATION ON OUR 3D IMAGING SERVICES.

